



Q41F碳鋼法蘭球閥
Q41F碳鋼法蘭球閥主要用于截斷或接通介質,也可用于流體的調節與控制。與其它閥類相比,球閥具優點1、流體阻力小,球閥是所有閥類中流體阻力最小的一種,即使是縮徑球閥,其流體阻力也相當小。
| 產品名稱: | 碳鋼法蘭球閥 | 產品型號: | Q41F |
| 公稱通徑: | DN15~DN800 | 結構形式: | 球形 |
| 公稱壓力: | 1.6Mpa~32.0Mpa | 連接方式: | 法蘭 |
| 適用溫度: | ≤550ºC | 驅動方式: | 手動 |
| 閥體材質: | 碳鋼、鑄鋼、WCB | 制造標準: | 國標GB、德國DIN、美國API、ANSI |
| 適用介質: | 水、油、氣體、液體 | 生產廠家: | 上海凱利科閥門有限公司 |
| 設計與制造 | 結構長度 | 法蘭尺寸 | 壓力-溫度 | 試驗-檢驗 |
| GB122237 | GB12221 | GB9113 JB79 | GB9131 | GB/T13927 JB/T9092 |
| 公稱壓力NominalPressure | 1.6 | 2.5 | 4.0 |
|
強度試驗 Shell Test |
2.4 | 3.8 | 6.0 |
|
水密封試驗 Water Seal Test |
1.8 | 2.8 | 4.4 |
|
氣密封試驗 Air Seal Test |
0.4-0.7 | ||
|
閥體 Body |
WCB | ZG1Cr18Ni9Ti | CF8 | CF3 | ZG1Cr18Ni12Mo2Ti | CF8M | CF3M |
|
球體閥桿 Ball Stem |
304 | 1Cr18Ni9Ti | 304 | 304L | 1Cr18Ni12Mo2Ti | 316 | 316L |
|
閥座 Seat |
聚四氟乙烯PTFE 加坡纖增強聚四氟乙烯PTFE+Glass 對位聚笨PPL | ||||||
|
墊片 Shim |
聚四氟乙烯PTFE 不銹鋼/柔性石墨Stainless Steel/flexible Graphite 齒形墊片Tooth Profile Gasket | ||||||
|
閥桿座 Stem Seat |
聚四氟乙烯PTFE 不銹鋼/柔性石墨 Stainless Steel/Flexible Graphite | ||||||
|
填料 Packing |
聚四氟乙烯PTFE 增強柔性石墨 Enhanced Flexible Graphite | ||||||
|
填料壓蓋 Gland |
1Cr18Ni9Ti | 304 | 304L | 1Cr18Ni12Mo2Ti | 316 | 316L | |
|
溫度 Temperature |
-29℃~150℃(聚四氟乙烯 PTFE) -29℃~200℃(加玻纖增強聚四氟乙烯 PTFE+GLASS) -29℃~300℃(對位聚笨 PPL) -29℃~550℃(金屬硬密封) |
||||||
|
介質 Medium |
水蒸汽油品 Water steam Oil goods |
硝酸類 Nitric Acid |
強氧化介質 strongey oxidable medium |
醋酸類 Acetic Acid | 尿素類Urea | ||

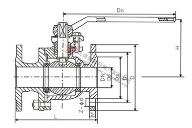
| 1.6MPa | DN | L | D | D1 | D2 | b | n-φd | H | D0 |
|
凸面法蘭 RF Q41F-16C Q41PPL 16C 16P 16R |
15 | 130 | 95 | 65 | 45 | 14 | 4-14 | 78 | 140 |
| 20 | 140 | 105 | 75 | 55 | 14 | 4-14 | 84 | 160 | |
| 25 | 150 | 115 | 85 | 65 | 14 | 4-14 | 95 | 180 | |
| 32 | 165 | 135 | 100 | 78 | 16 | 4-18 | 150 | 250 | |
| 40 | 180 | 145 | 110 | 85 | 16 | 4-18 | 150 | 300 | |
| 50 | 200 | 160 | 125 | 100 | 18 | 4-18 | 170 | 350 | |
| 65 | 220 | 180 | 145 | 120 | 20 | 4-18 | 195 | 350 | |
| 80 | 250 | 195 | 160 | 135 | 20 | 8-18 | 215 | 400 | |
| 100 | 280 | 215 | 180 | 155 | 20 | 8-18 | 250 | 500 | |
| 125 | 320 | 245 | 210 | 185 | 22 | 8-18 | 265 | 600 | |
| 150 | 360 | 280 | 240 | 210 | 24 | 8-23 | 270 | 800 | |
| 200 | 400 | 335 | 295 | 265 | 26 | 12-23 | 330 | 1200 | |
| 2.5MPa | 15 | 130 | 95 | 65 | 45 | 16 | 4-14 | 103 | 140 |
|
凸面法蘭 RF Q41F-25C Q41PPL 25C 25P 25R |
20 | 140 | 105 | 75 | 55 | 16 | 4-14 | 112 | 160 |
| 25 | 150 | 115 | 85 | 65 | 16 | 4-14 | 123 | 180 | |
| 32 | 165 | 135 | 100 | 78 | 18 | 4-18 | 150 | 250 | |
| 40 | 180 | 145 | 110 | 85 | 18 | 4-18 | 156 | 300 | |
| 50 | 200 | 160 | 125 | 100 | 20 | 8-18 | 172 | 350 | |
| 65 | 220 | 180 | 145 | 120 | 22 | 8-18 | 197 | 350 | |
| 80 | 250 | 195 | 160 | 135 | 22 | 8-23 | 222 | 400 | |
| 100 | 280 | 230 | 190 | 160 | 24 | 8-23 | 253 | 500 | |
| 125 | 320 | 270 | 220 | 188 | 28 | 8-25 | 275 | 600 | |
| 150 | 360 | 300 | 250 | 218 | 30 | 8-25 | 286 | 800 | |
| 200 | 400 | 360 | 310 | 278 | 34 | 12-25 | 340 | 1200 |
| 4.0MPa | DN | L | D | D1 | D2 | D6 | b | n-φd | H | D0 |
|
凹凸法蘭 MFM Q41F-40C Q41PPL 40C 40P 40R |
15 | 130 | 95 | 65 | 45 | 40 | 16 | 4-14 | 103 | 140 |
| 20 | 140 | 105 | 75 | 55 | 51 | 16 | 4-14 | 112 | 160 | |
| 25 | 150 | 115 | 85 | 65 | 58 | 16 | 4-14 | 123 | 160 | |
| 32 | 180 | 135 | 100 | 78 | 66 | 18 | 4-18 | 150 | 250 | |
| 40 | 200 | 145 | 110 | 85 | 76 | 18 | 4-18 | 156 | 250 | |
| 50 | 220 | 160 | 125 | 100 | 88 | 20 | 4-18 | 172 | 350 | |
| 65 | 250 | 180 | 145 | 120 | 110 | 22 | 8-18 | 197 | 350 | |
| 80 | 280 | 195 | 160 | 135 | 121 | 22 | 8-18 | 222 | 450 | |
| 100 | 320 | 230 | 190 | 160 | 150 | 24 | 8-23 | 253 | 450 | |
| 125 | 400 | 270 | 220 | 188 | 176 | 28 | 8-25 | 275 | 600 | |
| 150 | 400 | 300 | 250 | 218 | 204 | 30 | 8-25 | 286 | 800 | |
| 200 | 550 | 375 | 320 | 282 | 260 | 38 | 12-30 | 340 | 1200 | |
| 6.4MPa | 15 | 165 | 105 | 75 | 55 | 40 | 18 | 4-14 | 105 | 140 |
|
凹凸法蘭 MFM Q41F-64C Q41PPL 64 64P 64R |
20 | 190 | 125 | 90 | 68 | 51 | 20 | 4-18 | 125 | 160 |
| 25 | 216 | 135 | 100 | 78 | 58 | 22 | 4-18 | 135 | 250 | |
| 32 | 229 | 150 | 110 | 82 | 66 | 24 | 4-23 | 150 | 350 | |
| 40 | 241 | 165 | 125 | 95 | 76 | 24 | 4-23 | 165 | 350 | |
| 50 | 292 | 175 | 135 | 105 | 88 | 26 | 4-23 | 175 | 450 | |
| 65 | 330 | 200 | 160 | 130 | 110 | 28 | 8-23 | 200 | 450 | |
| 80 | 356 | 210 | 170 | 140 | 121 | 30 | 8-23 | 210 | 600 | |
| 100 | 432 | 250 | 200 | 168 | 150 | 32 | 8-25 | 250 | 700 | |
| 125 | 508 | 295 | 240 | 202 | 176 | 36 | 8-30 | 295 | 1100 | |
| 150 | 559 | 340 | 280 | 240 | 204 | 38 | 8-34 | 340 | 1500 |
聲明:【Q41F碳鋼法蘭球閥】規格型號、結構尺寸由上海凱利科閥門有限公司提供,如何選擇適用的Q41F碳鋼法蘭球閥產品,使之在工藝控制中安全可靠、經濟適用,可致電我司銷售部門及技術部門,我們將在最短的時間內為您解答! |